
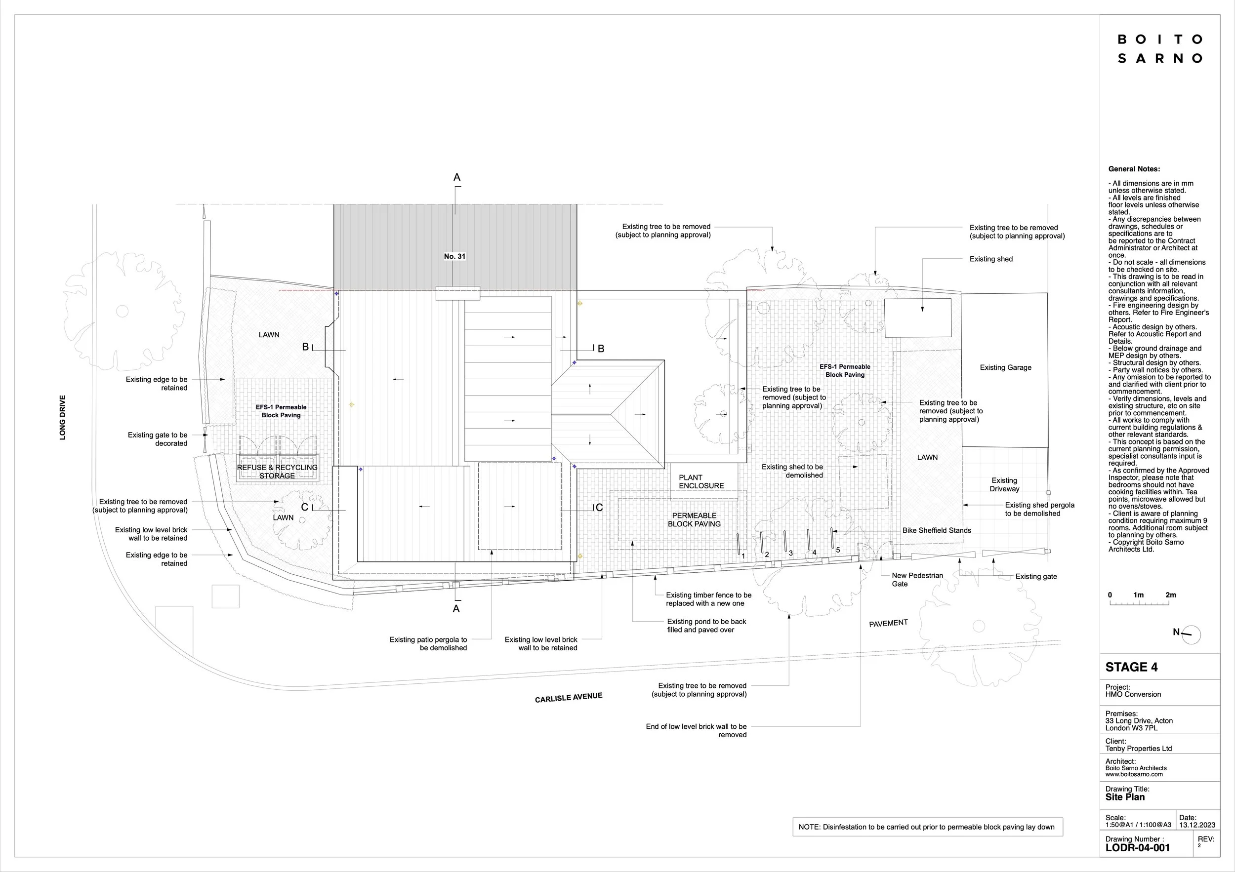
Co-living development in extended & retrofitted existing building - Acton London Borough of Ealing
Planning permission obtained 2023 - Technical phase completed
9 independent units with shared facilities























Co-living development in extended & retrofitted existing building - Acton London Borough of Ealing
Planning permission obtained 2023 - Technical phase completed
9 independent units with shared facilities